Характеристика объекта:

  • Общая площадь дома с террасами – 156,8 м2
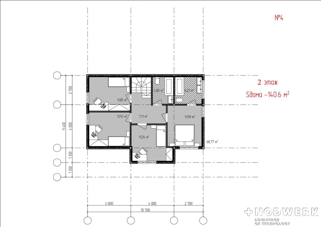
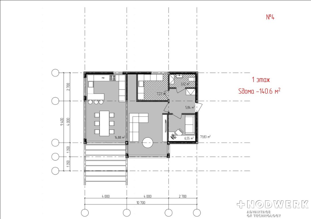
  • Площадь дома - 140 м2

В комплект поставки деревянной конструкции +NODWERK входит:

  • Фахверковая конструкция (балки, стойки) – клееная древесина.
    Наш основой поставщик – компания Segezha Group, которая производит более 7,5 тысяч кубических метров клеёной балки в месяц и является крупнейшим экспортером и заводом- производителем в России по клееной древесине. 

  • Каркасы заполнения стен, балки перекрытия, стропильная система – сухая строганная доска, сорт АВ.
    Мы работаем с компанией Stora Enso – финско-шведский концерн, чья продукция экспортируется в Европу, производится по евронормам и проходит сертификацию по конструкционной способности (С24).

Преимущества +NODWERK

  • Собственное производство
  • Заводское качество изготовленных деревянных конструкций
  • Высокая скорость монтажа домокомплекта
  • Строительные материалы экспортного качества
  • Профессиональные строители

Комплектация
Комплект дома
1 700 000 ₽
  • Домокомплекты заводского изготовления
  • Клееный брус и сухая строганая доска европейского качества
  • Три степени проверки сырья и готовой продукции
комплект дома с монтажем
2 700 000 ₽
  • Опытные строительные бригады
  • Строгое соблюдение сроков строительста
  • Расходные материалы от ведущих производителей
теплый контур
8 980 000 ₽
  • Отделка фасадов качественными зарубежными материалами
  • Топовое кровельное покрытие от ведущих мировых производителей
  • Деревянные окна из сосны 1-й категории

B2C

Хотите дом своей мечты? Мы поможем вам создать его просто, как «Раз-Два-Три».

B2B

Мы не гонимся за объёмами производства, но зато – мы решаем задачи, недоступные многим гигантам отрасли.

Визитная карточка компании Nodwerk

Сам Nodwerk мало, что может значить, а вот в сочетании с кем-то для кого-то Nodwerk является ценным.

Технология фахверк от Nodwerk

Название Nodwerk отражает приверженность компании технологии норвежского фахверка, как максимально отвечающей потребностям отечественного рынка.

СТАНОК HUNDEGGER K2I

Наше производство воплощает накопленный командой «NODWERK» практический опыт, а также передовые решения самого высокого мирового уровня. В основе производственной линии - пятиосевой деревообрабатывающий центр для столярных и плотницких работ Hundegger K2i, состоящий из тринадцати последовательных агрегатов. Высокопроизводительное оборудование позволяет за одно прохождение заготовки получить законченный элемент деревянной конструкции, изготовленный с точностью до десятых долей миллиметра.

Обслуживание компьютеризированной производственной линии требует минимального количества персонала. Это, в свою очередь, минимизирует вероятность негативного влияния так называемого человеческого фактора на конечный результат. 

контакты

194044, г. Санкт-Петербург, Выборгская набережная, 47, БЦ Гренадерский.

Адрес Санкт-Петербург,
Выборгская набережная, 47
CRM-форма появится здесь